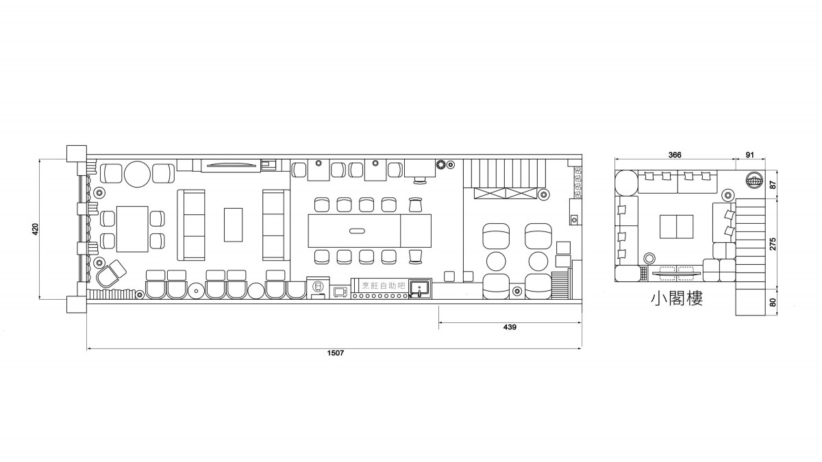
適合戲劇拍攝 、 適合會議講座 、 實景攝影棚 、 店面咖啡廳餐廳
北台灣、 台北市
居家風 、 北歐風
書房 、 廚房 .吧檯 、 咖啡廳.餐廳 、 磚牆 、 家景.客廳
20~29坪
提供 Wi-Fi 網路 、 捷運站 10 分內 、 捷運站 5 分內 、 有長期配合方案 、 有音響設備
挑高3.1m 不限人數,價格實惠平實,捷運3分鐘,門口免費停車,格局方正,棚費含設備,帶一台相機就能輕鬆拍出美照
▸ 點我看詳細
Shoots Island攝職島百坪自然光攝影棚,採光充足,滑軌式背景板與軟裝傢俱,可自由變換各種風格場景,詳細歡迎私訊詢問